At Steeldlink, we specialize in Duct and Plate Work Detailing services, providing highly accurate and reliable fabrication drawings for ductwork, plate work, and related components.
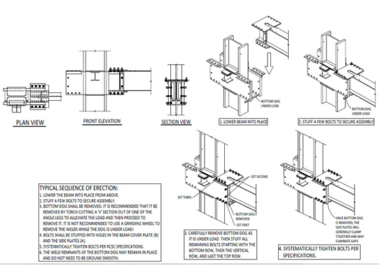
Duct and Plate Work Detailing refers to the creation of detailed shop drawings for the fabrication of ducts and plate components used in HVAC systems, industrial applications, and various other mechanical and structural systems. These drawings are essential for:
Lorem Ipsum is simply dummy text of the printing and typesetting industry.

We offer customized duct and plate detailing services based on the specific requirements of each project, ensuring optimal design and accuracy.

We use cutting-edge software like AutoCAD, Tekla, and SDS2 to generate accurate models and shop drawings.

Our team of experienced professionals is adept at delivering complex duct and plate work detailing projects with precision and efficiency.
Here’s what some of our valued clients have to say about working with us:
" I really like working with JB though, he is into international. The best part I like about this team is they are responsible and care taking towards the jobs. The best part JB speak well and understands the techy question."
"He is very active on every email and phone communication, It dose give me feel relax as he is 18 hours available for us, 100% response time whatever but he let us know the ETA on every email."
"I really like working with JB though, he is into international. The best part I like about this team is they are responsible and care taking towards the jobs. The best part JB speak well and understands the techy question."